
項目地點:寧夏
消毒供應中心面積:150平方米
樓層:四層
醫院床位:200張
手術室:兩間
產房:兩間
施工材料:立板、頂板均使用硅巖凈化板防火阻燃,防潮、隔音耐久性強。地面采用PCV地板,防火、防滑、耐磨且易清潔。
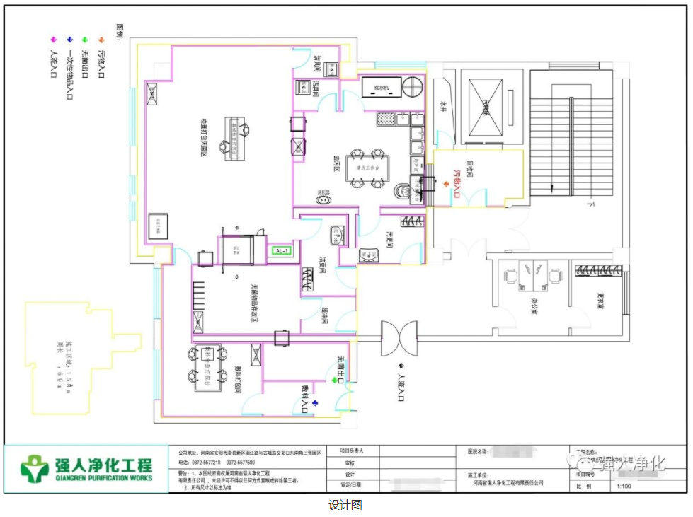
PS: CSSD宜接近手術室、產房和臨床科室,或與手術室之間有物品直接傳遞專用通道,不宜建在地下室或半地下室。

此消毒供應中心面積較小,空間緊湊,依舊嚴格執行標準,物品由污到潔,不交叉不逆流。
依據醫院CSSD任務工作量,去污區配備了污物接收臺、清洗工作臺、污物清洗槽、超聲波清洗機、雙開門干燥柜、洗眼器等設備,純水機放置于污物區內間,提供CSSD內全部用水。


檢查打包滅菌區配備雙開門脈動蒸汽滅菌器、低溫等離子過氧化氫滅菌器、器械檢查打包臺、敷料檢查打包臺、器械柜、敷料柜等。



無菌區內配備無菌儲存柜及貨架,用于滅菌后物品存放。通過傳遞窗發放無菌物品。

所有區域與外部有緩沖間連接,區域內設潔具間,區域之間設傳遞窗。