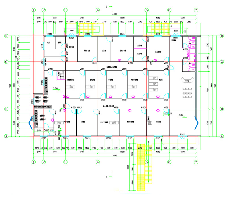
內鏡中心是醫院內鏡診療及內鏡清洗消毒與一體的科室,擔負著醫院內鏡的診療工作,是醫院診療的核心部門,同時還擔任對內鏡及附屬物品的清洗、消毒工作,是感染控制的核心部門,直接影響醫療護理質量的效果。
聯系電話:19693690616
內鏡中心是醫院內鏡診療及內鏡清洗消毒與一體的科室,擔負著醫院內鏡的診療工作,是醫院診療的核心部門,同時還擔任對內鏡及附屬物品的清洗、消毒工作,是感染控制的核心部門,直接影響醫療護理質量的效果。
三強為內鏡中心提供包括前期策劃、平面流程、設備配置、信息管理、裝修凈化、保障耗材以及培訓維護的內鏡中心系統解決方案。

